facebook pixel

Θεσσαλονίκη: Ανοίγει ο δρόμος για τη δημιουργία αποτεφρωτηρίου

Θεσσαλονίκη: Ανοίγει ο δρόμος για τη δημιουργία αποτεφρωτηρίου

Δημοσιεύτηκε στην Εφημερίδα της Κυβερνήσεως το διάταγμα που αφορά στη δημιουργία Κέντρου Αποτέφρωσης Νεκρών στην έκταση των Κοιμητηρίων Αναστάσεως του Κυρίου του Δήμου Θεσσαλονίκης.

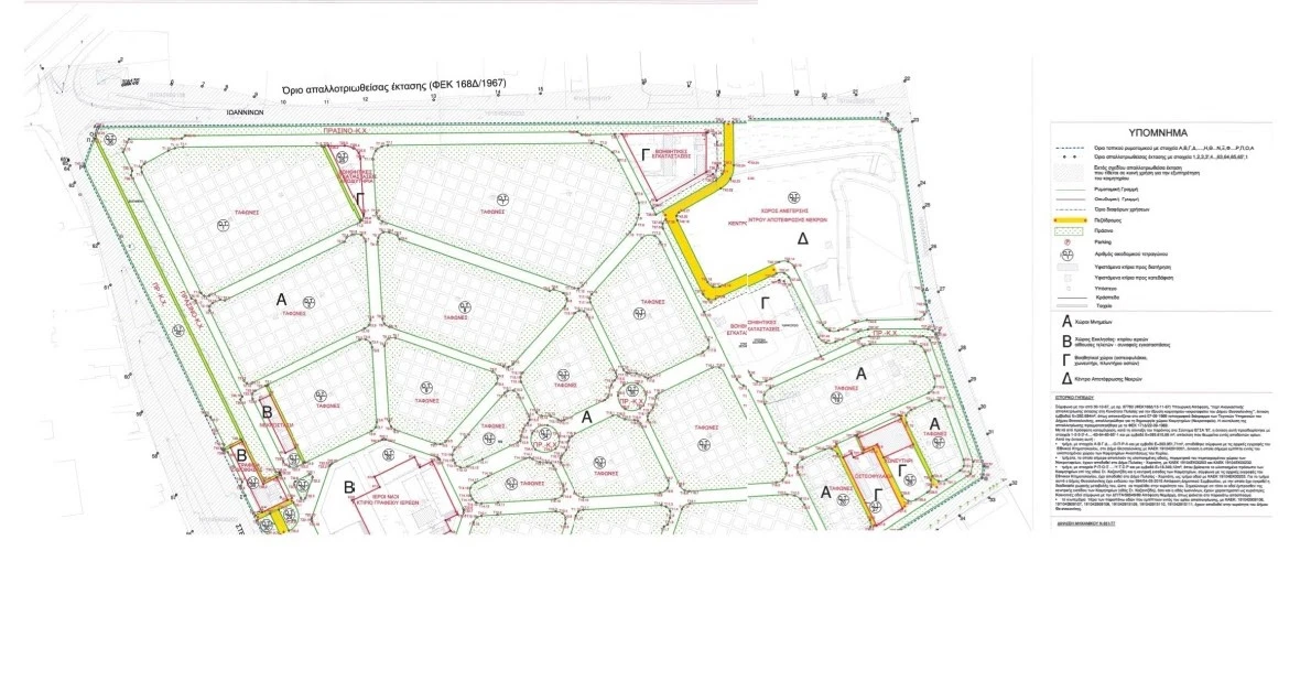
Με το συγκεκριμένο διάταγμα, το οποίο υπογράφεται από την Πρόεδρο της Δημοκρατίας, Κατερίνα Σακελλαροπούλου και τον Υφυπουργό Περιβάλλοντος και Ενέργειας, Νικόλαο Ταγαρά, εγκρίνεται το τοπικό ρυμοτομικό σχέδιο σε εκτός του εγκεκριμένου ρυμοτομικού σχεδίου περιοχή της Δημοτικής Ενότητας Πυλαίας του Δήμου Πυλαίας-Χορτιάτη για τον καθορισμό του χώρου των Κοιμητηρίων Αναστάσεως του Κυρίου και του Κέντρου Αποτέφρωσης Νεκρών (Κ.Α.Ν.), με τεύχος συντεταγμένων οικοδομικών τετραγώνων.

Ειδικότερα, εντός του καθοριζόμενου χώρου εγκρίνονται οδοί και πεζόδρομοι και καθορίζονται οικοδομήσιμοι χώροι, χώροι πρασίνου - κοινόχρηστοι χώροι, χώροι ταφώνων, χώροι στάθμευσης, χώροι βοηθητικών εγκαταστάσεων, χώροι νεκροστασίων, χώρος ανέγερσης Κέντρου Αποτέφρωσης Νεκρών (Κ.Α.Ν.), χώρος βοηθητικών εγκαταστάσεων και αποδυτηρίων, χώρος γραφείων διοίκησης, χώρος ιερών ναών και κτιρίου γραφείου ιερέων, χώρος πλυντηρίων οστών, χώρος οστεοφυλακίων, χώρος χωνευτηρίου, χώρος ανθοπωλείων και αίθουσας δεξιώσεων και χώρος εισόδου - θυρωρείου.

Η δημοσίευση του διατάγματος στο ΦΕΚ κλείνει μία πολεοδομική εκκρεμότητα ετών και ανοίγει τον δρόμο για τη δημιουργία του δεύτερου στη χώρα και πρώτου στη Βόρεια Ελλάδα Αποτεφρωτηρίου.

Σε σχετική δήλωσή του ο Δήμαρχος Θεσσαλονίκης Στέλιος Αγγελούδης σημείωσε τα εξής:

«Η δημοσίευση στο ΦΕΚ της έγκρισης του Τοπικού Ρυμοτομικού Σχεδίου για τη χωροθέτηση του Αποτεφρωτηρίου μας λύνει τα χέρια ώστε να τρέξουμε άμεσα όλες τις απαραίτητες διαδικασίες που απαιτούνται και να προχωρήσουμε το συντομότερο δυνατό στην πρόσκληση εκδήλωσης ενδιαφέροντος για την κατασκευή του Κέντρου Αποτέφρωσης.

Μέσα σε ένα χρόνο, με συνεχείς παρεμβάσεις μας στα αρμόδια Υπουργεία, κάνουμε το πρώτο και πλέον αποφασιστικό βήμα για να κερδίσουμε το -αυτονόητο- δικαίωμα της ελεύθερης επιλογής του κάθε ανθρώπου. Θέλω να ευχαριστήσω τον Υφυπουργό Περιβάλλοντος και Ενέργειας Νικόλαο Ταγαρά για την άμεση ανταπόκρισή του και την ουσιαστική στήριξη που παρείχε στο να μπουν τίτλοι τέλους σε μια ακόμη σημαντική εκκρεμότητα για την πόλη. Μετά από χρόνια στασιμότητας, η συνεπής διεκδίκηση αποδίδει καρπούς».

apotefrotirio.jpg


Ακολουθήστε τη σελίδα του metrosport.gr και στο google news

Μπείτε στην παρέα μας στο instagram

Κάντε like στη σελίδα μας στο facebook

Εγγραφείτε στο κανάλι του metrosport.gr και του Metropolis 95.5 στο youtube

ΣΧΕΤΙΚΑ ΑΡΘΡΑ

ΔΕΙΤΕ ΠΕΡΙΣΣΟΤΕΡΑ

Ενημερωθείτε πρώτοι για όλα τα τελεταία νέα, απευθείας στο email σας